
Gropius House is the main reference to design the project. I quoted site and tectonic features of Gropius House. The house which I designed is in a forest and it is related with environment thanks to ribbon windows. Ribbon window is a common point on my references; Villa Stein, Villa Savoye, Gropius House. The horizontal row of windows to dissolve the boxed volume of the building and usage of daylight in the most efficient way. In Villa Savoye, there is pilotis which is one of five principles of Le Corbusier. I quoted that, as well. And I used the new area as garage which becomes to exist under mass.
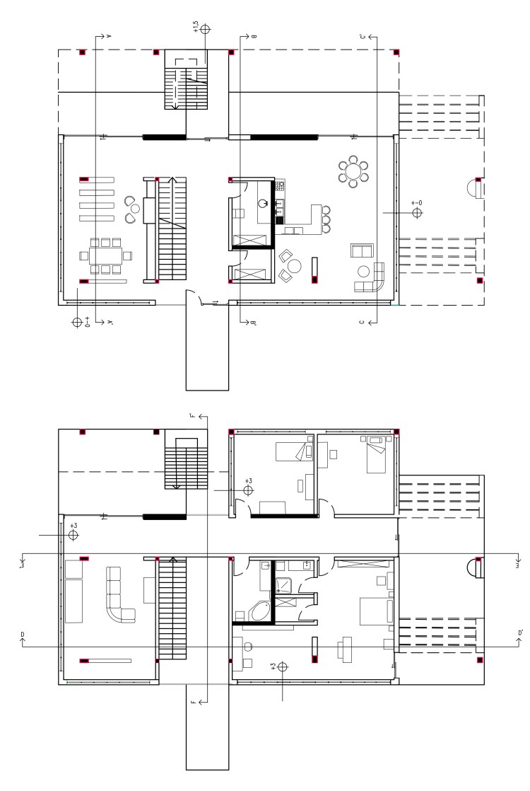
The plan of Gropius House is made based on the concept of simplicity. I referred the concept as my main strategy and I designed spaces of the house according to concept of simplicity. Walter Gropius divides different zones on Gropius House. Gropius House consists of three different parts that service, circulation and public as you see

the diagrams of Gropius House at the top of the poster. I referred it while I was creating spaces for the house. I separated public and service areas and circulation works on different zone.
There are two different types of terrace on the house which I designed. On the west side is coming from Gropius House. Terrace of Gropius Hose is in different zone. I translated it. Ceiling of the terrace has openings which provides light. And, the other terrace which is on south side seems a part of the floor and it has a stairs which connects the second floor(terrace) and ground that the feature is coming from Villa Stein. It is an alternative way to arrive environment. The house mainly designed to maximize relation interior of the house and exterior spaces, environment thanks to horizontal windows and alternative stairs. Ground floor is more public, first floor aims to maximize the privacy such as private bathrooms, bedrooms.

Scenario: The House is designed for politician and academician couple and their 2 children. The family is addicted to read books therefore there are bookcases almost all rooms. There is a library on the ground floor which can be used as discussion and study are as well. In the adult bed room, there is a study area which is separated by a column and bookcase.